白金高輪駅の賃貸物件一覧

建物 21 棟 部屋 35
表示棟数:

レフィールオーブ麻布仙台坂

新築/築浅

賃料 30.3万円 管理費 20,000円
間取り 1LDK 面積 41.30m2
住所 東京都港区南麻布1-2-33 築年月 2025年2月
交通

都営大江戸線麻布十番駅』徒歩8

東京メトロ日比谷線広尾駅』徒歩13

都営大江戸線赤羽橋駅』徒歩14

都営三田線白金高輪駅』徒歩15

東京メトロ南北線麻布十番駅』徒歩8

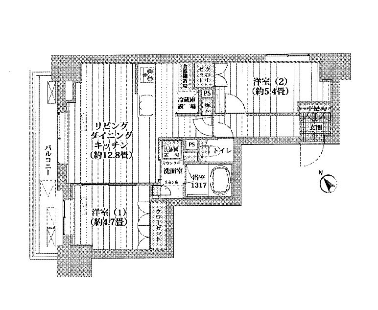
間取り図 階数 間取り 面積 賃料 管理費 敷金 礼金 お気に入り お問合わせ
1LDK 3階 1LDK 41.3m2 30.3万円 20,000円 1.0ヶ月 1.0ヶ月
全ての空室情報を表示 その他-2 閉じる
建物 21棟中  21~21棟表示
お気に入りに追加しました
お気に入りを解除しました
検索条件を保存しました
現在の検索条件
白金高輪駅
こだわりの条件
白金高輪駅
会社情報
ブランドマンションRENT

ブランドマンションRENT
(株式会社エスティリンク)

営業時間:10:00~19:00

定休日:(年中無休)

03-5468-8899
おすすめの物件