賃貸物件一覧

建物 1,935 棟 部屋 8,512
表示棟数:

HF八広レジデンス

仲介手数料無料

賃料 12.0万円 管理費 6,000円
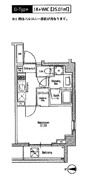
間取り 1DK 面積 25.21m2
住所 東京都墨田区八広4-50-1 築年月 2020年11月
交通

京成押上線八広駅』徒歩9

京成押上線京成曳舟駅』徒歩14

間取り図 階数 間取り 面積 賃料 管理費 敷金 礼金 お気に入り お問合わせ
1DK 3階 1DK 25.21m2 12.0万円 6,000円 1.0ヶ月 1.0ヶ月
全ての空室情報を表示 その他-2 閉じる
建物 1,935棟中  1922~1922棟表示
お気に入りに追加しました
お気に入りを解除しました
検索条件を保存しました
現在の検索条件
こだわりの条件
会社情報
ブランドマンションRENT

ブランドマンションRENT
(株式会社エスティリンク)

営業時間:10:00~19:00

定休日:(年中無休)

03-5468-8899
おすすめの物件