賃貸物件一覧

建物 1,854 棟 部屋 8,581
表示棟数:

ダイナシティ三田

仲介手数料無料

分譲賃貸

賃料 15.8万円 管理費 14,000円
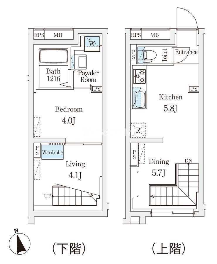
間取り 1DK 面積 32.74m2
住所 東京都港区三田2-17-16 築年月 2004年11月
交通

JR山手線田町駅』徒歩8

都営三田線三田駅』徒歩7

都営三田線白金高輪駅』徒歩10

間取り図 階数 間取り 面積 賃料 管理費 敷金 礼金 お気に入り お問合わせ
1DK 9階 1DK 32.74m2 15.8万円 14,000円 1.0ヶ月 1.0ヶ月
全ての空室情報を表示 その他-2 閉じる
建物 1,854棟中  1844~1844棟表示
お気に入りに追加しました
お気に入りを解除しました
検索条件を保存しました
現在の検索条件
こだわりの条件
会社情報
ブランドマンションRENT

ブランドマンションRENT
(株式会社エスティリンク)

営業時間:10:00~19:00

定休日:(年中無休)

03-5468-8899
おすすめの物件