賃貸物件一覧

建物 1,889 棟 部屋 8,398
表示棟数:

グランパセオ銀座築地 【04月18日更新】

仲介手数料無料

新築/築浅

敷金ゼロ

礼金ゼロ

賃料 17.1万円 ~ 17.5万円 管理費 12,000円
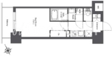
間取り 1DK 面積 25.02m2
住所 東京都中央区築地6-23-2 築年月 2024年11月
交通

東京メトロ日比谷線築地駅』徒歩6

都営大江戸線築地市場駅』徒歩5

都営浅草線東銀座駅』徒歩8

間取り図 階数 間取り 面積 賃料 管理費 敷金 礼金 お気に入り お問合わせ
1DK 10階 1DK 25.02m2 17.1万円 12,000円 0.0ヶ月 0.0ヶ月
1DK 12階 1DK 25.02m2 17.5万円 12,000円 0.0ヶ月 0.0ヶ月
全ての空室情報を表示 その他-1 閉じる
建物 1,889棟中  1539~1539棟表示
お気に入りに追加しました
お気に入りを解除しました
検索条件を保存しました
現在の検索条件
こだわりの条件
会社情報
ブランドマンションRENT

ブランドマンションRENT
(株式会社エスティリンク)

営業時間:10:00~19:00

定休日:(年中無休)

03-5468-8899
おすすめの物件