賃貸物件一覧

建物 1,890 棟 部屋 8,425
表示棟数:

プライムアーバン葛西 【04月19日更新】

仲介手数料無料

賃料 8.6万円 管理費 5,000円
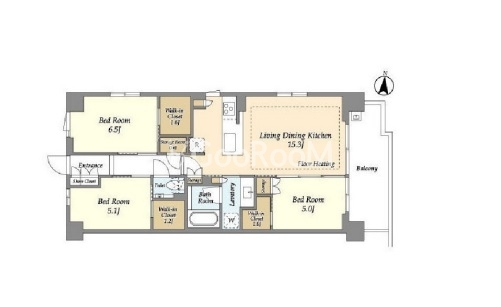
間取り 1K 面積 20.15m2
住所 東京都江戸川区中葛西6-18-5 築年月 2004年2月
交通

東京メトロ東西線葛西駅』徒歩8

間取り図 階数 間取り 面積 賃料 管理費 敷金 礼金 お気に入り お問合わせ
1K 2階 1K 20.15m2 8.6万円 5,000円 1.0ヶ月 2.0ヶ月
全ての空室情報を表示 その他-2 閉じる
建物 1,890棟中  1496~1496棟表示
お気に入りに追加しました
お気に入りを解除しました
検索条件を保存しました
現在の検索条件
こだわりの条件
会社情報
ブランドマンションRENT

ブランドマンションRENT
(株式会社エスティリンク)

営業時間:10:00~19:00

定休日:(年中無休)

03-5468-8899
おすすめの物件