パークアクシスの賃貸物件一覧

建物 161 棟 部屋 884
表示棟数:

パークアクシス白金台南 【05月14日更新】

賃料 16.6万円 管理費 0円
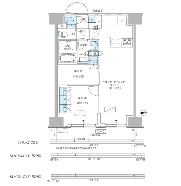
間取り 1R 面積 31.71m2
住所 東京都品川区上大崎1-21-1 築年月 2003年8月
交通

JR山手線目黒駅』徒歩5

東京メトロ南北線白金台駅』徒歩8

JR山手線五反田駅』徒歩15

都営三田線目黒駅』徒歩5

東急目黒線目黒駅』徒歩5

間取り図 階数 間取り 面積 賃料 管理費 敷金 礼金 お気に入り お問合わせ
1R 5階 1R 31.71m2 16.6万円 - 1.0ヶ月 2.0ヶ月
全ての空室情報を表示 その他-2 閉じる
建物 161棟中  34~34棟表示
お気に入りに追加しました
お気に入りを解除しました
検索条件を保存しました
現在の検索条件
こだわりの条件
ブランド パークアクシス
会社情報
ブランドマンションRENT

ブランドマンションRENT
(株式会社エスティリンク)

営業時間:10:00~19:00

定休日:(年中無休)

03-5468-8899
おすすめの物件