デザイナーズマンションの賃貸物件一覧

建物 929 棟 部屋 2,524
表示棟数:

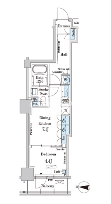
プレール・ドゥーク浅草松が谷

分譲賃貸

ペット相談

敷金ゼロ

賃料 17.0万円 管理費 10,000円
間取り 1LDK 面積 40.99m2
住所 東京都台東区松が谷1-10-10 築年月 2015年11月
交通

東京メトロ銀座線田原町駅』徒歩5

つくばエクスプレス浅草駅』徒歩7

JR山手線上野駅』徒歩13

間取り図 階数 間取り 面積 賃料 管理費 敷金 礼金 お気に入り お問合わせ
1LDK 11階 1LDK 40.99m2 17.0万円 10,000円 0.0ヶ月 1.0ヶ月
全ての空室情報を表示 その他-2 閉じる
建物 929棟中  924~924棟表示
お気に入りに追加しました
お気に入りを解除しました
検索条件を保存しました
現在の検索条件
こだわりの条件
建物特徴 デザイナーズマンション
会社情報
ブランドマンションRENT

ブランドマンションRENT
(株式会社エスティリンク)

営業時間:10:00~19:00

定休日:(年中無休)

03-5468-8899
おすすめの物件