デザイナーズマンションの賃貸物件一覧

建物 896 棟 部屋 2,558
表示棟数:

アルテシモ ポルト

仲介手数料無料

分譲賃貸

ペット相談

敷金ゼロ

賃料 12.0万円 管理費 10,000円
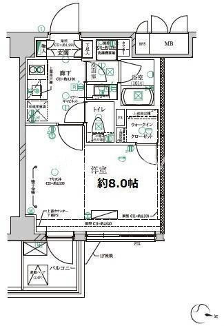
間取り 1K 面積 30.95m2
住所 東京都中央区入船2-2-3 築年月 2016年6月
交通

東京メトロ有楽町線新富町駅』徒歩3

東京メトロ日比谷線八丁堀駅』徒歩3

JR京葉線八丁堀駅』徒歩3

東京メトロ日比谷線築地駅』徒歩7

都営浅草線東銀座駅』徒歩12

間取り図 階数 間取り 面積 賃料 管理費 敷金 礼金 お気に入り お問合わせ
1K 2階 1K 30.95m2 12.0万円 10,000円 0.0ヶ月 1.0ヶ月
全ての空室情報を表示 その他-2 閉じる
建物 896棟中  895~895棟表示
お気に入りに追加しました
お気に入りを解除しました
検索条件を保存しました
現在の検索条件
こだわりの条件
建物特徴 デザイナーズマンション
会社情報
ブランドマンションRENT

ブランドマンションRENT
(株式会社エスティリンク)

営業時間:10:00~19:00

定休日:(年中無休)

03-5468-8899
おすすめの物件