分譲賃貸の賃貸物件一覧

建物 452 棟 部屋 1,039
表示棟数:

シーフォルム神保町

分譲賃貸

賃料 22.8万円 管理費 15,000円
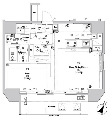
間取り 1LDK 面積 48.73m2
住所 東京都千代田区神田神保町1-34-7 築年月 2015年12月
交通

東京メトロ半蔵門線神保町駅』徒歩3

都営新宿線神保町駅』徒歩3

都営三田線神保町駅』徒歩3

JR中央・総武線御茶ノ水駅』徒歩9

東京メトロ丸ノ内線御茶ノ水駅』徒歩9

間取り図 階数 間取り 面積 賃料 管理費 敷金 礼金 お気に入り お問合わせ
1LDK 9階 1LDK 48.73m2 22.8万円 15,000円 1.0ヶ月 1.0ヶ月
全ての空室情報を表示 その他-2 閉じる
建物 452棟中  451~451棟表示
お気に入りに追加しました
お気に入りを解除しました
検索条件を保存しました
現在の検索条件
こだわりの条件
建物特徴 分譲賃貸
会社情報
ブランドマンションRENT

ブランドマンションRENT
(株式会社エスティリンク)

営業時間:10:00~19:00

定休日:(年中無休)

03-5468-8899
おすすめの物件