ペット相談の賃貸物件一覧

建物 1,388 棟 部屋 6,929
表示棟数:

アジールコート後楽園 【05月18日更新】

仲介手数料無料

新築/築浅

ペット相談

賃料 21.0万円 管理費 20,000円
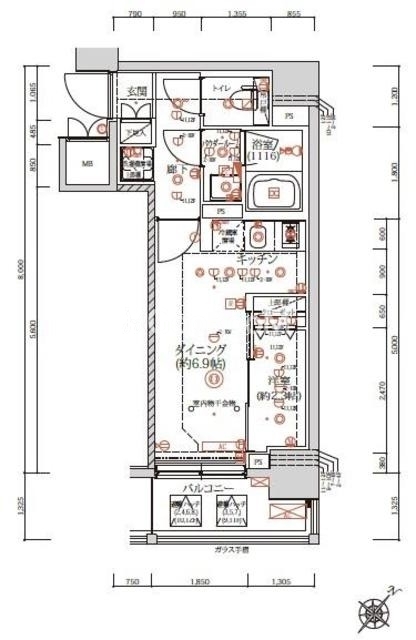
間取り 2LDK 面積 42.32m2
住所 東京都文京区白山1-3-5 築年月 2025年5月
交通

都営三田線春日駅』徒歩7

東京メトロ丸ノ内線後楽園駅』徒歩10

都営三田線白山駅』徒歩9

東京メトロ丸ノ内線後楽園駅』徒歩10

東京メトロ南北線後楽園駅』徒歩10

間取り図 階数 間取り 面積 賃料 管理費 敷金 礼金 お気に入り お問合わせ
2LDK 1階 2LDK 42.32m2 21.0万円 20,000円 1.0ヶ月 1.0ヶ月
全ての空室情報を表示 その他-2 閉じる
建物 1,388棟中  354~354棟表示
お気に入りに追加しました
お気に入りを解除しました
検索条件を保存しました
現在の検索条件
こだわりの条件
建物特徴 ペット相談
会社情報
ブランドマンションRENT

ブランドマンションRENT
(株式会社エスティリンク)

営業時間:10:00~19:00

定休日:(年中無休)

03-5468-8899
おすすめの物件