ペット相談の賃貸物件一覧

建物 1,343 棟 部屋 6,885
表示棟数:

プライムアーバン用賀Ⅱ

仲介手数料無料

分譲賃貸

ペット相談

賃料 12.0万円 管理費 7,000円
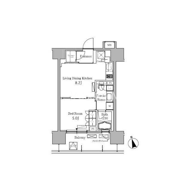
間取り 1K 面積 25.06m2
住所 東京都世田谷区玉川台1-14-12 築年月 2008年2月
交通

東急田園都市線用賀駅』徒歩2

間取り図 階数 間取り 面積 賃料 管理費 敷金 礼金 お気に入り お問合わせ
1K 3階 1K 25.06m2 12.0万円 7,000円 1.0ヶ月 1.0ヶ月
全ての空室情報を表示 その他-2 閉じる
建物 1,343棟中  1272~1272棟表示
お気に入りに追加しました
お気に入りを解除しました
検索条件を保存しました
現在の検索条件
こだわりの条件
建物特徴 ペット相談
会社情報
ブランドマンションRENT

ブランドマンションRENT
(株式会社エスティリンク)

営業時間:10:00~19:00

定休日:(年中無休)

03-5468-8899
おすすめの物件