カスタリアの賃貸物件一覧

建物 37 棟 部屋 95
表示棟数:

カスタリア新宿夏目坂 【04月15日更新】

仲介手数料無料

礼金ゼロ

賃料 13.4万円 ~ 21.0万円 管理費 8,000円
間取り 1R 面積 26.66m2  ~  40.67m2
住所 東京都新宿区喜久井町10 築年月 2006年2月
交通

東京メトロ東西線早稲田駅』徒歩2

都営大江戸線若松河田駅』徒歩10

間取り図 階数 間取り 面積 賃料 管理費 敷金 礼金 お気に入り お問合わせ
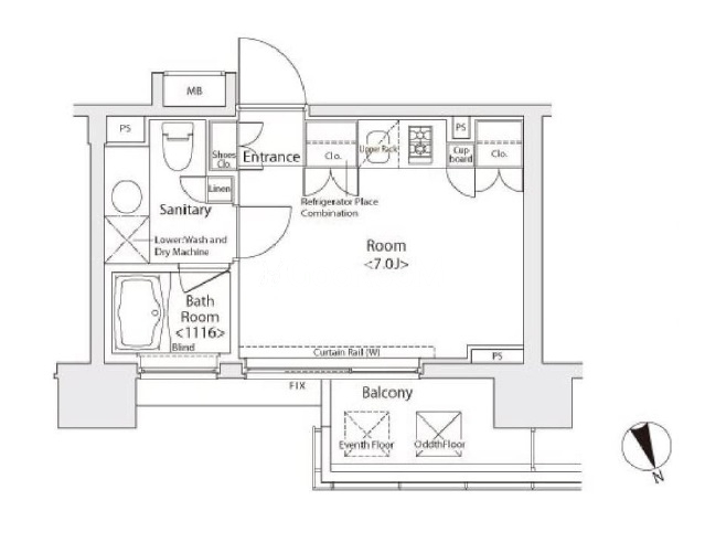
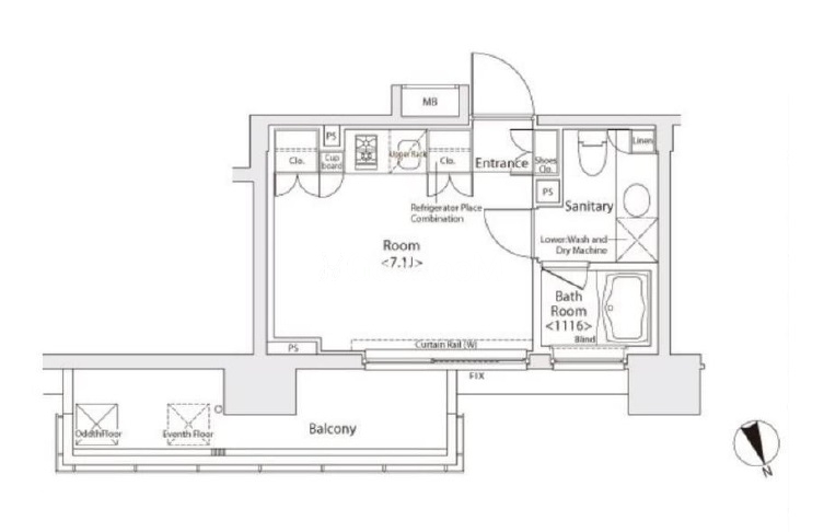
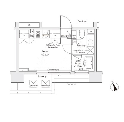
1R 2階 1R 26.66m2 13.4万円 8,000円 1.0ヶ月 0.0ヶ月
1R 3階 1R 40.67m2 21.0万円 8,000円 1.0ヶ月 1.0ヶ月
全ての空室情報を表示 その他-1 閉じる
建物 37棟中  30~30棟表示
お気に入りに追加しました
お気に入りを解除しました
検索条件を保存しました
現在の検索条件
こだわりの条件
ブランド カスタリア
会社情報
ブランドマンションRENT

ブランドマンションRENT
(株式会社エスティリンク)

営業時間:10:00~19:00

定休日:(年中無休)

03-5468-8899
おすすめの物件