低層マンションの賃貸物件一覧

建物 216 棟 部屋 723
表示棟数:

ラティエラ祐天寺 【04月21日更新】

仲介手数料無料

礼金ゼロ

賃料 17.4万円 管理費 10,000円
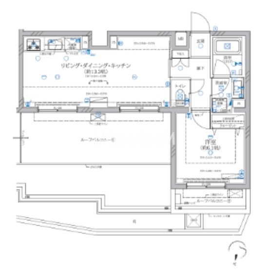
間取り 1LDK 面積 40.62m2
住所 東京都目黒区中目黒5-28-20 築年月 2002年11月
交通

東急東横線祐天寺駅』徒歩5

東急東横線学芸大学駅』徒歩14

東急東横線中目黒駅』徒歩14

間取り図 階数 間取り 面積 賃料 管理費 敷金 礼金 お気に入り お問合わせ
1LDK 2階 1LDK 40.62m2 17.4万円 10,000円 1.0ヶ月 0.0ヶ月
全ての空室情報を表示 その他-2 閉じる
建物 216棟中  168~168棟表示
お気に入りに追加しました
お気に入りを解除しました
検索条件を保存しました
現在の検索条件
こだわりの条件
建物特徴 低層マンション
会社情報
ブランドマンションRENT

ブランドマンションRENT
(株式会社エスティリンク)

営業時間:10:00~19:00

定休日:(年中無休)

03-5468-8899
おすすめの物件