デザイナーズマンションの賃貸物件一覧

建物 906 棟 部屋 2,578
表示棟数:

プライムブリス上野元浅草 【04月23日更新】

仲介手数料無料

礼金ゼロ

賃料 13.8万円 ~ 24.5万円 管理費 10,000円 ~ 15,000円
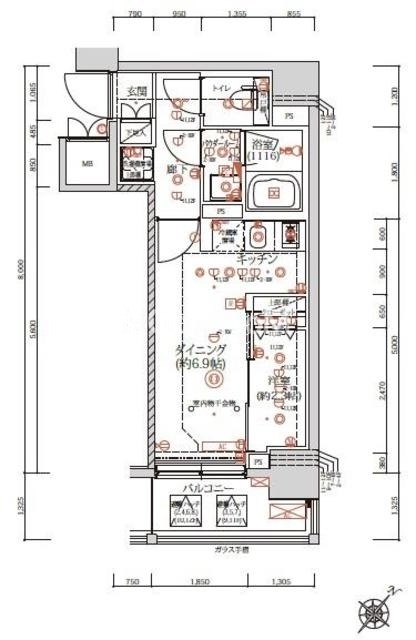
間取り 1K  ~ 2LDK 面積 25.45m2  ~  50.44m2
住所 東京都台東区元浅草3-17-12 築年月 2022年10月
交通

都営大江戸線新御徒町駅』徒歩4

JR山手線上野駅』徒歩13

東京メトロ銀座線上野駅』徒歩12

東京メトロ銀座線稲荷町駅』徒歩7

つくばエクスプレス新御徒町駅』徒歩4

間取り図 階数 間取り 面積 賃料 管理費 敷金 礼金 お気に入り お問合わせ
1K 4階 1K 25.45m2 13.8万円 10,000円 1.0ヶ月 0.0ヶ月
2LDK 8階 2LDK 50.44m2 24.5万円 15,000円 1.0ヶ月 0.0ヶ月
1LDK 11階 1LDK 40.74m2 19.8万円 15,000円 1.0ヶ月 0.0ヶ月
1DK 14階 1DK 25.45m2 14.5万円 10,000円 1.0ヶ月 0.0ヶ月
全ての空室情報を表示 その他1 閉じる
建物 906棟中  83~83棟表示
お気に入りに追加しました
お気に入りを解除しました
検索条件を保存しました
現在の検索条件
こだわりの条件
建物特徴 デザイナーズマンション
会社情報
ブランドマンションRENT

ブランドマンションRENT
(株式会社エスティリンク)

営業時間:10:00~19:00

定休日:(年中無休)

03-5468-8899
おすすめの物件