デザイナーズマンションの賃貸物件一覧

建物 879 棟 部屋 2,503
表示棟数:

クレイシア五反田駅前 【04月11日更新】

仲介手数料無料

分譲賃貸

ペット相談

賃料 10.3万円 管理費 12,000円
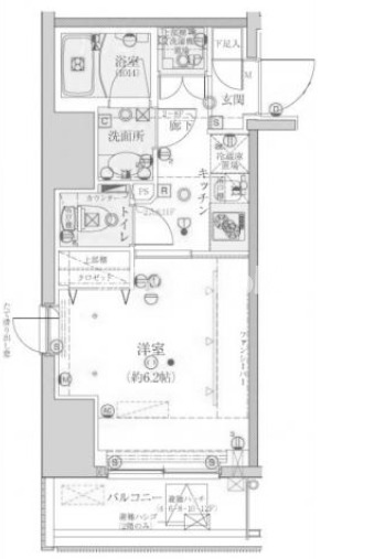
間取り 1R 面積 22.65m2
住所 東京都品川区東五反田5-28-4 築年月 2015年9月
交通

JR山手線五反田駅』徒歩3

東急池上線五反田駅』徒歩6

都営浅草線五反田駅』徒歩2

間取り図 階数 間取り 面積 賃料 管理費 敷金 礼金 お気に入り お問合わせ
1R 9階 1R 22.65m2 10.3万円 12,000円 1.0ヶ月 1.0ヶ月
全ての空室情報を表示 その他-2 閉じる
建物 879棟中  496~496棟表示
お気に入りに追加しました
お気に入りを解除しました
検索条件を保存しました
現在の検索条件
こだわりの条件
建物特徴 デザイナーズマンション
会社情報
ブランドマンションRENT

ブランドマンションRENT
(株式会社エスティリンク)

営業時間:10:00~19:00

定休日:(年中無休)

03-5468-8899
おすすめの物件