デザイナーズマンションの賃貸物件一覧

建物 882 棟 部屋 2,505
表示棟数:

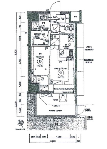
ブランシエスタ白山 【04月14日更新】

仲介手数料無料

ペット相談

賃料 17.8万円 管理費 10,000円
間取り 1LDK 面積 35.11m2
住所 東京都文京区白山1-12 築年月 2019年2月
交通

都営三田線白山駅』徒歩6

都営三田線春日駅』徒歩8

都営大江戸線春日駅』徒歩8

間取り図 階数 間取り 面積 賃料 管理費 敷金 礼金 お気に入り お問合わせ
1LDK 6階 1LDK 35.11m2 17.8万円 10,000円 1.0ヶ月 1.0ヶ月
全ての空室情報を表示 その他-2 閉じる
建物 882棟中  425~425棟表示
お気に入りに追加しました
お気に入りを解除しました
検索条件を保存しました
現在の検索条件
こだわりの条件
建物特徴 デザイナーズマンション
会社情報
ブランドマンションRENT

ブランドマンションRENT
(株式会社エスティリンク)

営業時間:10:00~19:00

定休日:(年中無休)

03-5468-8899
おすすめの物件